VIA GIAMBELLINO - EDIFICIO ALTO, COSTO BAJO
|
Ubicación: Via Giambellino/Río Naviglio, Milan, Italia
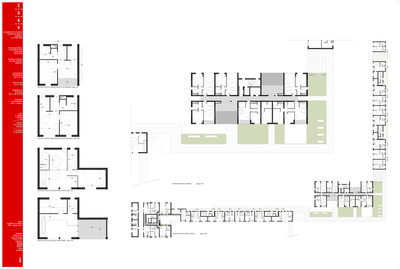
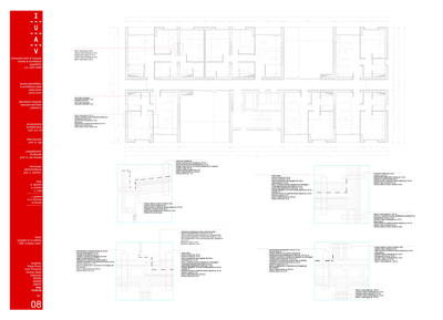
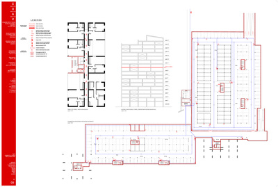
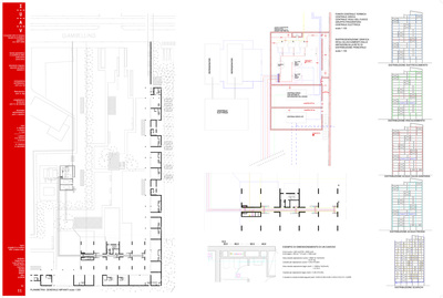
Superficie: 4.300 m2 Proyecto: Andrea Saleh, Luca Temporin, Paola Piccin Año proyecto: 2008 Proyecto académico de laboratorio integrado en la Universidad IUAV de Venecia, Italia.
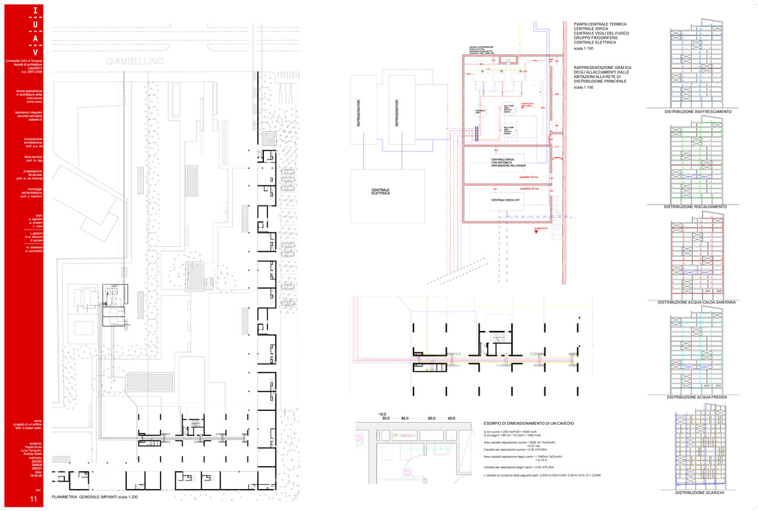
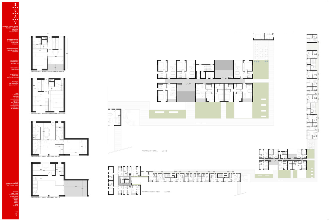
Elaborado tomando las bases de un concurso público para vivienda económica, el proyecto se desarrolla en profundidad desde el punto de vista constructivo, estructural, tecnológico y económico, utilizando recursos de alto estándar como verificaciones termohigrométricas de los paramentos y cálculo para la certificación energética del edificio en Ecodomus. El proyecto se encuentra en la zona urbana de Milán, y consiste en dos edificios habitacionales más una placa con programa comercial y social, que recorre a nivel del terreno bordeando una iglesia preexistente, generando un recorrido urbano peatonal que cruza hasta la ribera sur del Naviglio. La propuesta busca conciliar la sustentabilidad energética y económica, sin desprestigiar la calidad arquitectónica y la flexibilidad de los espacios. Se genera una modulación que permite la optimización de los espacios y la solución constructiva tanto de la placa como de las torres. Se generan vacíos en altura que aportan en espacio público y se relacionan con las vistas hacia la ciudad y hacia el río. |
Imágenes
Estudio AS ©2020
















