TERRAZA INVIERNO / VERANO
|
Ubicación: Vivienda unifamiliar, Vitacura, Santiago.
Superficie: 63 / 772 m2 Proyecto y construcción: Andrea Saleh Año Construcción: 2015 El proyecto se hace cargo de la transformación de una terraza existente en una vivienda unifamiliar, para convertirla en un espacio de alta versatilidad, cómodo tanto en invierno como en verano.
La situación existente resultaba en una pésima habitabilidad en términos de luz y calor. En verano la orientación y la alta radiación solar bajo una cubierta de policarbonato y un piso brillante potenciaban el efecto de calor y encandilaban el recinto en la tarde. Los recintos contiguos (living, comedor y dormitorio) recibían poca luz durante el día. La estrategia que se tomó para mejorar el confort térmico en ambas estaciones se basa en dos condiciones principales: La creación de un techo ventilado y de baja tramitancia térmica (<0,30 W/m2K); y la utilización de una “cortina” de cristal colgante, que aísla el recinto en invierno y desaparece en verano, permitiendo el efecto invernadero en invierno y la ventilación del recinto en verano. En términos lumínicos se decidió combinar el techo ventilado con grandes rasgos de vista y luz cenital. Se utilizaron cristales templados tinteados, para mejorar la entrada de luz y la vista hacia el exterior, controlando el ingreso de calor y radiación solar directa. |
El resultado es un recinto capaz de adaptarse a la condición climática del momento, manteniéndose confortable todo el año, mejorando la entrada de luz y potenciando la conexión visual con el exterior.
Fotos obra terminada
Fotografías: Archivo AS, Archivo Ducasse Industrial
Fotos de proceso |
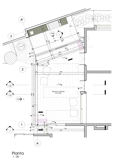
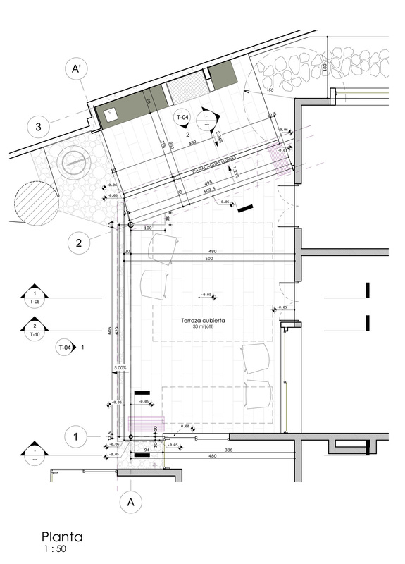
Dibujo técnico |
Estudio AS ©2020



















