REMODELACIÓN OFICINA LAS URBINAS
|
Ubicación: Las Urbinas, Providencia, Santiago.
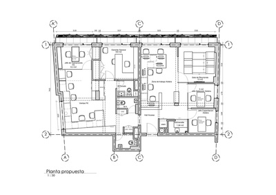
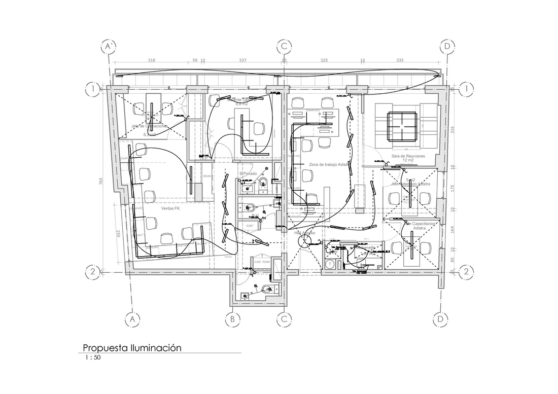
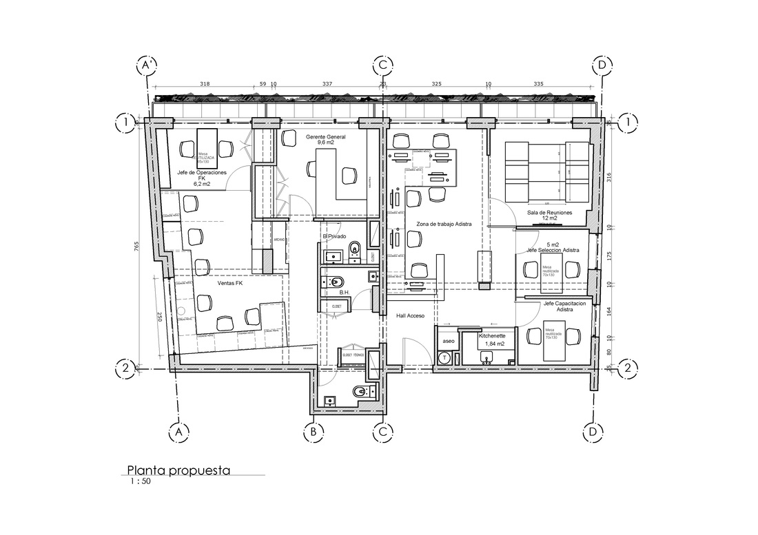
Superficie: 120 m2 Proyecto: Andrea Saleh Año Construcción: 2014 El proyecto consistió en la selección y remodelación de un departamento para ser usado como oficina doble. Para aprovechar la superficie de la mejor forma posible, se demolieron gran parte de las tabiquerías originales para lograr dos espacios de planta libre que sirvieran como espacio principal para cada oficina, con algunos privados acristalados, permitiendo la libre vista hacia el parque. Los servicios como baños, cocina, recepción y sala de reuniones son compartidos por ambos equipos.
Los privados y plantas libres resultantes se distribuyeron con mobiliario adosado para aprovechar al máximo el espacio disponible, iluminando los puestos de trabajo con luminarias continuas de alta eficiencia y confort (led y fluorescente). Se alcanzó el estándar requerido recuperando las molduras originales de cielos, muros y puertas, pero remodelando completamente los pisos en mal estado, las ventanas de fierro y los espacios de baño y cocina que fueron modificados completamente. La oficina buscaba lograr una imagen elegante y austera, sin que esto resultase en espacios fríos y poco acogedores. Para esto se contrastaron los colores del mobiliario, luminarias y tabiquerías acristaladas con un piso funcional pero cálido, guardapolvos de madera natural y ventanas en aluwood, por fuera manteniendo el color negro del resto de las ventanas en el edificio, y por dentro construidas completamente en madera natural. |
Fotos obra terminada
Fotos oficina original |
Dibujo técnico |
Estudio AS ©2020




















