CASA EL MANZANO
|
Ubicación: El Manzano, San José de Maipo, RM.
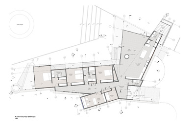
Superficie: 255 / 5.722 m2 Proyecto: Andrea Saleh Cálculo estructural: Juan Luis Contreras Año proyecto: 2015 El encargo consistió en lograr una vivienda con recintos luminosos e integrados visualmente con el paisaje natural circundante, aprovechando al máximo las vistas hacia los cordones montañosos del Cajón del Maipo.
La propuesta genera dos volúmenes que se escalonan en la cubierta generando un rasgo de luz y vista cenital que recorre toda la casa. El volumen sur se trabaja con énfasis en las vistas hacia el cielo (nor poniente), controlando sus aperturas hacia el acceso y las circulaciones de la parcela (sur oriente). El volumen norte se abre completamente al terreno y considera una cubierta ecológica que mejora el confort térmico y el manejo de aguas lluvias. El sector público se trabaja como una planta libre que contiene el living, comedor y cocina; separados volumétricamente con la cubierta que se eleva hacia el norte. Hacia el poniente se controlan las alturas y dimensiones de los espacios más privados. La casa considera una estructura mixta de acero y madera, utilizando paneles SIP (Structural Insulated Panel) en muros y tabiques. |
Imágenes
Estudio AS ©2020








